Konia Green Villa
- €585,000
Description
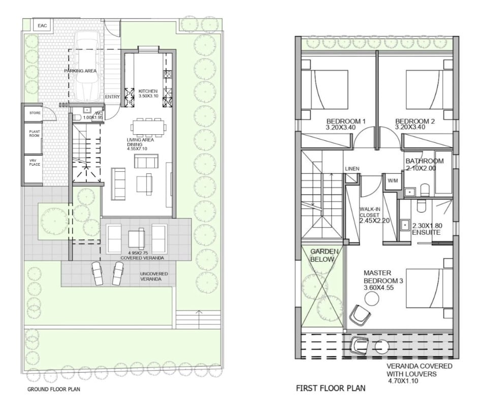
This elegant three-bedroom villa features open-plan living with modern lines and natural materials, offering one bathroom, an en-suite, and a discrete WC.
The home includes an expansive uncovered veranda, underfloor heating, and ample storage space.
Surrounded by a beautifully landscaped Mediterranean garden, the villa also offers the option of a custom private pool, balancing luxury and practicality.
Details:
3-bedroom villa with a total area of 151 square meters
Open-plan living layout with clean, modern lines and natural materials
1 bathroom, 1 en-suite bathroom, and 1 discrete WC
High specification finishes both internally and externally
Expansive 35 square meter uncovered veranda
Underfloor heating system for comfort during cooler months
Ample storage space
Covered parking for added convenience
Optional private swimming pool
Surrounded by a beautifully landscaped Mediterranean garden Amenities:
Access to a lush central green park within the community
Secure gated community
Konia Green is a distinguished gated community in the prestigious hillside suburb of Konia, Paphos, offering modern living within a vibrant and welcoming environment. The development comprises 34 detached villas and 26 townhouses, each designed with seamless open-plan living spaces, high-specification finishes, and Mediterranean gardens, ranging from 2 to 4 bedrooms, with exceptional design features.
Residents enjoy covered parking and access to a lush central green park that fosters both privacy and social interaction. Located just 3 km from the town center of Paphos and near the region’s largest international School, Konia Green combines traditional charm with contemporary convenience, making it the ideal family location.
Address
Open on Google Maps-
City: Konia
-
State/county: Konia
-
Area: Pafos
-
Country: Cyprus
Details
-
Property ID pa-358-8357
-
Price €585,000
-
Property Size 142 Sq M
-
Land Area 300 Sq M
-
Bedrooms 3
-
Bathrooms 2
-
Property Type Villa
-
Property Status For Sale
Mortgage Calculator
-
Down Payment
-
Loan Amount
-
Monthly Mortgage Payment
-
Property Tax
-
Home Insurance
-
PMI
-
Monthly HOA Fees



